SOSYAL MEDYA
+90 232 376 81 07 - 376 81 08
info@uyanelektrik.com
ANA SAYFA
KURUMSAL
Şirket Profili
Kurucumuz
Tarihçe
Sürdürülebilirlik
Kurumsal Değerlerimiz
Vizyon & Misyon
Entegre Yönetim Sistemi Politikası
ÜRÜNLER
KALİTE
Sertifikalar
REFERANSLAR
İNSAN KAYNAKLARI
İnsan Kaynakları Politikası
Açık Pozisyonlar
İş Başvuru Formu
İLETİŞİM
TR
EN
Anasayfa
>
Ürünler
>
Metal Mahfazalı Modüler Hücreler
>
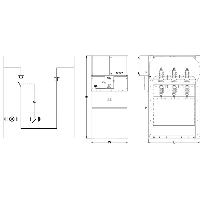
Yük Ayırıcılı Bara Bağlama Kuplaj Hücresi
Ürünlerimiz
Yük Ayırıcılı Bara Bağlama Kuplaj Hücresi
Ürün Tanıtım - PDF File
Hücre Boyutları (mm)
Yük Ayırıcılı Bara Bağlama Kuplaj Hücresi
Hücre Boyutları (mm)
W
L
H
12-24 kV
1000
1000
1700
36 kV
1500
1400
2250
Hücre Komponentleri
Hücre Komponentleri
Standart
Opsiyonel
SF6 Yük Ayırıcı
✓
Gerilim Göstergesi
✓
Geçit İzolatörü
✓
AG Koruma Kumanda Panosu
✓
Yay Kurma Motoru
✓
RAL9002 Boyalı Yan Kapama
✓
TÜM ÜRÜNLER